| 物件名 | ラグゼナ平井ノース | ||
|---|---|---|---|
| 交通アクセス | 平井駅より徒歩12分 | ||
| 建物構造 | RC | ||
| 契約期間 | 2年 | ||
| 物件種別 | マンション | 築年月 | 2025年09月 |
| 現況 | 空室 | 更新料 | 新賃料の1ヶ月分 |
| 引渡 | 即入居可 | 主要採光面 | 北西 |
| 駐輪場 | 有 275円~/月 | バイク置場 | 空要確認 |
| 駐車場 | 空要確認 | ||
| 損害保険 | 23,000円/2年 | ||
| 保証会社利用 | 要加入 | 鍵交換費用 | - |
| 保証料 | 詳細はお問い合わせください。 | ||
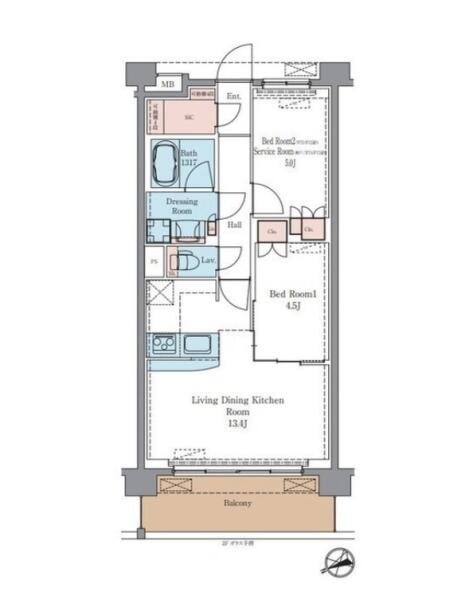
| 設備・条件 | 2階以上の物件 , 角部屋 , ペット相談 , 2人入居可 , 即入居可 , 保証人不要 , システムキッチン , ガスコンロ , コンロ二口以上 , カウンターキッチン , バス・トイレ別 , 追い焚き , シャワートイレ , 浴室乾燥機 , エアコン , CSアンテナ , BSアンテナ , オートロック , TVドアホン , 宅配ボックス , エレベーター , 室内洗濯機置場 , フローリング , 駐輪場あり , バルコニー , 都市ガス , タイル貼り | ||
| 備考 | フリーレント1ヶ月 屋上開放 インターネット無料(UCOM光) 2面採光 2面バルコニー オールフローリング パウダールーム 独立洗面化粧台 24時間換気システム クローゼット 収納スペース シューズボックス スマートロック導入 防犯カメラ 敷地内ごみ置場 町会費:200円/月 退去時ルームクリーニング費用負担あり ペット飼育時:敷金1ヶ月追加/3匹飼育時は敷金2ヶ月追加 ※引っ越し業者指定あり | ||
| お問い合わせ番号 | 04317 | ||
- ※写真や間取り図面が現況と相違する場合は現況を優先させていただきます。
- ※掲載している物件が万が一ご成約の場合はご了承願います。
- ※駐車場、バイク置場、駐輪場の正確な空き状況についてはお問い合わせ頂けますでしょうか。
- ※共同住宅の場合はこちらのお部屋以外にも空室がある場合がございます。
弊社専門スタッフが迅速にご対応致しますので、お電話かメールにてお気軽にお問い合わせください。 - ※仲介手数料の割引率が変更になっている場合もございますので、お問い合わせの際にご確認いただけますよう
お願い申し上げます。 - ※法人契約にて社宅代行業者を利用する場合には、仲介手数料の割引が適用されない場合がございます。























































JR中央・総武線「平井」駅より徒歩12分のペット可新築賃貸マンションです。旧中川河川敷に近く愛犬とのお散歩に便利なお部屋となります。
ただいまフリーレント1ヶ月キャンペーン中!
ペットは小型犬・猫あわせて3匹まで飼育のご相談いただけます。
こちらのお部屋は仲介手数料無料にてご紹介中ですので、詳細についてはお気軽にお問い合わせください。