| 物件名 | ワンルーフレジデンス錦糸町 | ||
|---|---|---|---|
| 交通アクセス | 亀戸駅より徒歩7分 | ||
| 建物構造 | RC | ||
| 契約期間 | 定期借家3年(再契約型) | ||
| 物件種別 | マンション | 築年月 | 2024年11月 |
| 現況 | 空室 | 更新料 | - |
| 引渡 | 5月下旬予定 | 主要採光面 | 西 |
| 駐輪場 | 有 | バイク置場 | 空要確認 5,500円/月 |
| 駐車場 | 空要確認 34,100円/月 | ||
| 損害保険 | 16,550円/2年 | ||
| 保証会社利用 | 要加入 | 鍵交換費用 | 33,000円(税込) |
| 保証料 | 詳細はお問い合わせください。 | ||
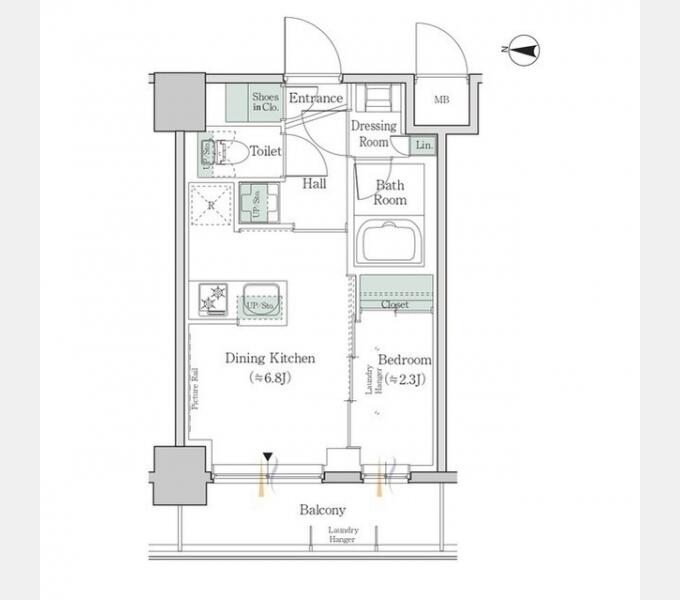
| 設備・条件 | 2階以上の物件 , ペット相談 , 保証人不要 , システムキッチン , ガスコンロ , コンロ二口以上 , カウンターキッチン , バス・トイレ別 , シャワートイレ , 浴室乾燥機 , エアコン , CSアンテナ , BSアンテナ , 光ファイバー , オートロック , TVドアホン , 宅配ボックス , エレベーター , 室内洗濯機置場 , フローリング , バイク置き場あり , 駐輪場あり , バルコニー , 都市ガス , タイル貼り | ||
| 備考 | ペット用足洗い場(共用部) インターネット無料(auひかり限定) オールフローリング パウダールーム 独立洗面化粧台 24時間換気システム クローゼット 収納スペース シューズボックス ランドリーハンガー ピクチャーレール 照明器具 ディンプルキー ダブルロックドア 防犯カメラ 敷地内ごみ置場 退去時ルームクリーニング費用負担あり ペット飼育時:敷金1ヶ月追加 駐輪場ステッカー登録費:3,300円(契約時) EV車用充電設備:3,000円/月(区画No.4のみ) | ||
| お問い合わせ番号 | 05056 | ||
- ※写真や間取り図面が現況と相違する場合は現況を優先させていただきます。
- ※掲載している物件が万が一ご成約の場合はご了承願います。
- ※駐車場、バイク置場、駐輪場の正確な空き状況についてはお問い合わせ頂けますでしょうか。
- ※共同住宅の場合はこちらのお部屋以外にも空室がある場合がございます。
弊社専門スタッフが迅速にご対応致しますので、お電話かメールにてお気軽にお問い合わせください。 - ※仲介手数料の割引率が変更になっている場合もございますので、お問い合わせの際にご確認いただけますよう
お願い申し上げます。 - ※法人契約にて社宅代行業者を利用する場合には、仲介手数料の割引が適用されない場合がございます。

























































JR中央・総武線「亀戸」駅より徒歩7分のペット可賃貸マンションです。ンターネット無料!亀戸西公園に隣接した住環境良好なお部屋になります。
ペットは小型犬は1匹まで。猫は2匹まで飼育のご相談いただけます。
こちらのお部屋は仲介手数料無料にてご紹介中ですので、詳細についてはお気軽にお問い合わせください。