| 物件名 | TASUKI RICHESSE SHIN-NAKANO (タスキ リシェス 新中野 ) | ||
|---|---|---|---|
| 交通アクセス | 中野富士見町駅より徒歩6分 | ||
| 建物構造 | RC | ||
| 契約期間 | 定期借家2年(再契約可) | ||
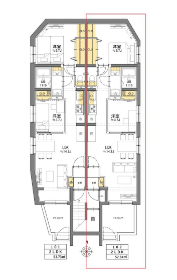
| 物件種別 | マンション | 築年月 | 2026年03月 |
| 現況 | 空室 | 更新料 | 新賃料の1.25ヶ月分 |
| 引渡 | 即入居可 | 主要採光面 | 南 |
| 駐輪場 | 500円/月 | バイク置場 | なし |
| 駐車場 | なし | ||
| 損害保険 | 26,000円/2年 | ||
| 保証会社利用 | 要加入 | 鍵交換費用 | - |
| 保証料 | 初回:総賃料の50% 更新料:総賃料の30%/2年 | ||
| 設備・条件 | 南向き , 角部屋 , ペット相談 , 2人入居可 , デザイナーズ , 即入居可 , 事務所可 , 保証人不要 , システムキッチン , ガスコンロ , コンロ二口以上 , バス・トイレ別 , 追い焚き , シャワートイレ , 浴室乾燥機 , エアコン , 光ファイバー , オートロック , TVドアホン , 宅配ボックス , 室内洗濯機置場 , フローリング , 駐輪場あり , バルコニー , 都市ガス | ||
| 備考 | フリーレント3ヶ月 照明器具 24時間換気システム 高速インターネット 収納 パウダールーム 独立洗面化粧台 防犯カメラ 駐輪場初回登録料:2,000円 24時間緊急サポート:16,500円/2年 ペット飼育時:敷金1ヶ月追加(償却)+共益費1,000円/月 | ||
| お問い合わせ番号 | 05006 | ||
- ※写真や間取り図面が現況と相違する場合は現況を優先させていただきます。
- ※掲載している物件が万が一ご成約の場合はご了承願います。
- ※駐車場、バイク置場、駐輪場の正確な空き状況についてはお問い合わせ頂けますでしょうか。
- ※共同住宅の場合はこちらのお部屋以外にも空室がある場合がございます。
弊社専門スタッフが迅速にご対応致しますので、お電話かメールにてお気軽にお問い合わせください。 - ※仲介手数料の割引率が変更になっている場合もございますので、お問い合わせの際にご確認いただけますよう
お願い申し上げます。 - ※法人契約にて社宅代行業者を利用する場合には、仲介手数料の割引が適用されない場合がございます。


















































東京メトロ丸の内線「中野富士見町」駅より徒歩6分のペット可賃貸マンションです。閑静な住宅街で、アクセスも良好な生活環境に優れたお部屋になります。
ただいまフリーレント3ヶ月キャンペーン中!
ペットは中型犬は1匹まで。小型犬は2匹まで飼育のご相談いただけます。
こちらのお部屋は仲介手数料無料にてご紹介中ですので、詳細についてはお気軽にお問い合わせください。