| 物件名 | STANDZ 柿の木坂 | ||
|---|---|---|---|
| 交通アクセス | 都立大学駅より徒歩9分 | ||
| 建物構造 | RC | ||
| 契約期間 | 2年 | ||
| 物件種別 | マンション | 築年月 | 2025年02月 |
| 現況 | 居住中 | 更新料 | 新賃料の1ヶ月分 |
| 引渡 | 7月上旬予定 | 主要採光面 | 西 |
| 駐輪場 | - | バイク置場 | - |
| 駐車場 | なし | ||
| 損害保険 | 要加入 | ||
| 保証会社利用 | 要加入 | 鍵交換費用 | 22,000円(税込) |
| 保証料 | 初回:総賃料の50% 年額:10,000円 | ||
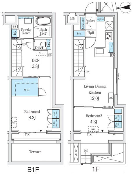
| 設備・条件 | 1階の物件 , 角部屋 , ペット相談 , 2人入居可 , システムキッチン , ガスコンロ , コンロ二口以上 , バス・トイレ別 , 追い焚き , シャワートイレ , 浴室乾燥機 , エアコン , ウォークインクローゼット , BSアンテナ , オートロック , 宅配ボックス , エレベーター , 室内洗濯機置場 , フローリング , 専用庭 , バイク置き場あり , 都市ガス | ||
| 備考 | メゾネット パウダールーム 独立洗面化粧台 全室収納 シューズインクローゼット 食洗器 敷地内ごみ置場(常時ごみ出し可) ディンプルキー ダブルロック 退去時クリーニング費用負担有 口座振替事務手数料:220円/月 ペット飼育時:小型犬は敷金1ヶ月追加/猫は敷金2カ月追加 | ||
| お問い合わせ番号 | 04839 | ||
- ※写真や間取り図面が現況と相違する場合は現況を優先させていただきます。
- ※掲載している物件が万が一ご成約の場合はご了承願います。
- ※駐車場、バイク置場、駐輪場の正確な空き状況についてはお問い合わせ頂けますでしょうか。
- ※共同住宅の場合はこちらのお部屋以外にも空室がある場合がございます。
弊社専門スタッフが迅速にご対応致しますので、お電話かメールにてお気軽にお問い合わせください。 - ※仲介手数料の割引率が変更になっている場合もございますので、お問い合わせの際にご確認いただけますよう
お願い申し上げます。 - ※法人契約にて社宅代行業者を利用する場合には、仲介手数料の割引が適用されない場合がございます。























































東急東横線「都立大学」駅より徒歩9分のペット可賃貸マンションです。人気の柿の木坂エリアで、都心へのアクセスも良好な住環境に優れたお部屋になります。
ペットは小型犬・猫あわせて2匹まで飼育のご相談いただけます。
こちらのお部屋は仲介手数料無料にてご紹介中ですので、詳細についてはお気軽にお問い合わせください。