| 物件名 | PLENDY 浦和別所 (プレンディ浦和別所 ) | ||
|---|---|---|---|
| 交通アクセス | 中浦和駅より徒歩10分 | ||
| 建物構造 | RC | ||
| 契約期間 | 定期借家2年(再契約型) | ||
| 物件種別 | マンション | 築年月 | 1992年04月 |
| 現況 | 空室 | 更新料 | 新賃料の1ヶ月分 |
| 引渡 | 相談 | 主要採光面 | 南 |
| 駐輪場 | 有 330円~/月 | バイク置場 | 有 5,500円/月 |
| 駐車場 | 有 19,800円~/月 | ||
| 損害保険 | 1,650円/月 | ||
| 保証会社利用 | 要加入 | 鍵交換費用 | 16,500円~(税込)/任意 |
| 保証料 | 初回:総賃料の60% 月額:総賃料の1% | ||
| 設備・条件 | 2階以上の物件 , ペット相談 , 2人入居可 , 保証人不要 , システムキッチン , ガスコンロ , コンロ二口以上 , バス・トイレ別 , 追い焚き , シャワートイレ , 浴室乾燥機 , エアコン , ウォークインクローゼット , トランクルーム , 光ファイバー , オートロック , TVドアホン , 宅配ボックス , エレベーター , 室内洗濯機置場 , フローリング , 駐車場あり , バイク置き場あり , 駐輪場あり , バルコニー , 都市ガス , タイル貼り | ||
| 備考 | リノベーション工事実施 インターネット無料 オールフローリング 全部屋エアコン 食器洗浄機 ドレッシングルーム 独立洗面化粧台 24時間換気システム クローゼット 収納スペース シューズボックス ディンプルキー 敷地内ごみ置場 トランクルーム:5,500円(税込)/月 PLENDYサポート要加入:1,650円/月 退去時ルームクリーニング費用負担あり ペット飼育時:敷金2ヶ月追加(1ヶ月償却)および中型犬・小型犬・猫は賃料5,000円増/大型犬・2匹は賃料10,000円増/3匹飼育は賃料15,000円増 | ||
| お問い合わせ番号 | 04806 | ||
- ※写真や間取り図面が現況と相違する場合は現況を優先させていただきます。
- ※掲載している物件が万が一ご成約の場合はご了承願います。
- ※駐車場、バイク置場、駐輪場の正確な空き状況についてはお問い合わせ頂けますでしょうか。
- ※共同住宅の場合はこちらのお部屋以外にも空室がある場合がございます。
弊社専門スタッフが迅速にご対応致しますので、お電話かメールにてお気軽にお問い合わせください。 - ※仲介手数料の割引率が変更になっている場合もございますので、お問い合わせの際にご確認いただけますよう
お願い申し上げます。 - ※法人契約にて社宅代行業者を利用する場合には、仲介手数料の割引が適用されない場合がございます。



















































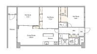
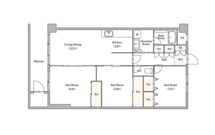
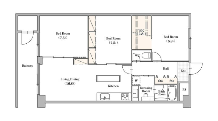
JR埼京線「中浦和」駅より徒歩10分のペット可賃貸マンションです。リノベーション工事実施のお部屋となります。
ペットは中型犬・小型犬・猫の飼育相談が可能です。多頭飼育はお問い合わせください。
こちらのお部屋は仲介手数料無料にてご紹介中ですので、詳細についてはお気軽にお問い合わせください。