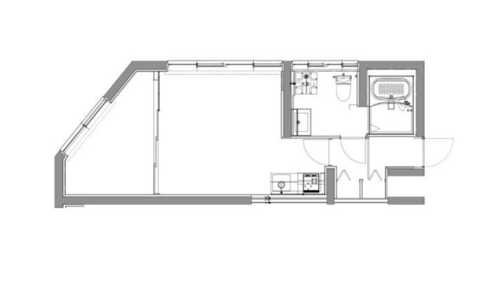
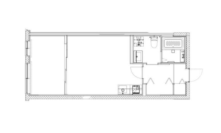
| 物件名 | 【成約済み】GENOVIA 大山 (ジェノヴィア大山 ) | ||
|---|---|---|---|
| 交通アクセス | 大山駅より徒歩7分 | ||
| 建物構造 | RC | ||
| 契約期間 | 2年 | ||
| 物件種別 | マンション | 築年月 | 2025年12月 |
| 現況 | - | 更新料 | - |
| 引渡 | - | 主要採光面 | - |
| 駐輪場 | - | バイク置場 | - |
| 駐車場 | - | ||
| 損害保険 | - | ||
| 保証会社利用 | - | 鍵交換費用 | - |
| 保証料 | - | ||
| 設備・条件 | 2階以上の物件 , 角部屋 , ペット相談 , 2人入居可 , 保証人不要 , システムキッチン , ガスコンロ , コンロ二口以上 , バス・トイレ別 , 追い焚き , シャワートイレ , 浴室乾燥機 , エアコン , CSアンテナ , BSアンテナ , オートロック , TVドアホン , 宅配ボックス , 室内洗濯機置場 , フローリング , 駐輪場あり , 都市ガス , タイル貼り | ||
| 備考 | - | ||
| お問い合わせ番号 | 04588 | ||
- ※写真や間取り図面が現況と相違する場合は現況を優先させていただきます。
- ※掲載している物件が万が一ご成約の場合はご了承願います。
- ※駐車場、バイク置場、駐輪場の正確な空き状況についてはお問い合わせ頂けますでしょうか。
- ※共同住宅の場合はこちらのお部屋以外にも空室がある場合がございます。
弊社専門スタッフが迅速にご対応致しますので、お電話かメールにてお気軽にお問い合わせください。 - ※仲介手数料の割引率が変更になっている場合もございますので、お問い合わせの際にご確認いただけますよう
お願い申し上げます。 - ※法人契約にて社宅代行業者を利用する場合には、仲介手数料の割引が適用されない場合がございます。
ジェノヴィア大山の空室一覧
最新の空室状況について知りたい方は、お気軽にお問い合わせください。

















































東武東上線「大山」駅より徒歩7分のペット可新築賃貸マンションです。利便の良いエリアの生活環境良好なお部屋となります。
ペットは大型犬・中型犬・小型犬・猫の多頭飼育が可能です。3匹以上もご相談ください。
こちらのお部屋は募集終了となりました。最新情報はお気軽にお問い合わせください。