| 物件名 | Weave Base-Itabashi Honcho (ウィーヴベース板橋本町 ) | ||
|---|---|---|---|
| 交通アクセス | 板橋本町駅より徒歩7分 | ||
| 建物構造 | RC | ||
| 契約期間 | 定期借家3年(再契約型) | ||
| 物件種別 | マンション | 築年月 | 2025年05月 |
| 現況 | 空室 | 更新料 | - |
| 引渡 | 即入居可 | 主要採光面 | 東 |
| 駐輪場 | 有 330円/月 | バイク置場 | 空要確認 7,700円/月 |
| 駐車場 | 空要確認 | ||
| 損害保険 | 要加入 | ||
| 保証会社利用 | 要加入 | 鍵交換費用 | - |
| 保証料 | 初回:総賃料の50% 月額:総賃料の4.25% | ||
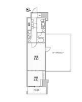
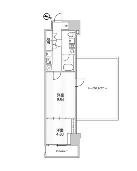
| 設備・条件 | 角部屋 , ペット相談 , 2人入居可 , 即入居可 , 保証人不要 , システムキッチン , ガスコンロ , コンロ二口以上 , バス・トイレ別 , 追い焚き , シャワートイレ , 浴室乾燥機 , エアコン , CATV , CSアンテナ , BSアンテナ , 光ファイバー , オートロック , TVドアホン , 宅配ボックス , エレベーター , 室内洗濯機置場 , フローリング , バイク置き場あり , 駐輪場あり , バルコニー , 都市ガス , タイル貼り | ||
| 備考 | フリーレント2ヶ月 インターネット無料 2面採光 ルーフバルコニー オールフローリング パウダールーム 独立洗面化粧台 24時間換気システム オープンクローゼット 収納スペース シューズボックス ディンプルキー ダブルロックドア 防犯カメラ 敷地内ごみ置場 退去時ルームクリーニング費用負担あり ペット飼育時:敷金1ヶ月追加/償却 | ||
| お問い合わせ番号 | 04431 | ||
- ※写真や間取り図面が現況と相違する場合は現況を優先させていただきます。
- ※掲載している物件が万が一ご成約の場合はご了承願います。
- ※駐車場、バイク置場、駐輪場の正確な空き状況についてはお問い合わせ頂けますでしょうか。
- ※共同住宅の場合はこちらのお部屋以外にも空室がある場合がございます。
弊社専門スタッフが迅速にご対応致しますので、お電話かメールにてお気軽にお問い合わせください。 - ※仲介手数料の割引率が変更になっている場合もございますので、お問い合わせの際にご確認いただけますよう
お願い申し上げます。 - ※法人契約にて社宅代行業者を利用する場合には、仲介手数料の割引が適用されない場合がございます。
ウィーヴベース板橋本町の空室一覧
| 号室 | 賃料 | 管理費 / 共益費 | 間取り | 面積 | 個別情報 |
|---|---|---|---|---|---|
| 806号室募集中 | 18.4万円 | 15,000円 | 1LDK | 35.54m² | 詳細 |
| 1001号室募集中 | 18万円 | 20,000円 | 1LDK | 40.48m² | 詳細 |
| 1002号室募集中 | 17.2万円 | 15,000円 | 1LDK | 35.84m² | 詳細 |
| 804号室募集中 | 17万円 | 15,000円 | 1LDK | 36.73m² | 詳細 |
| 803号室募集中 | 17万円 | 15,000円 | 1LDK | 36.73m² | 詳細 |
| 805号室募集中 | 16.8万円 | 15,000円 | 1LDK | 35.55m² | 詳細 |
| 802号室募集中 | 17.8万円 | 15,000円 | 1LDK | 35.84m² | 詳細 |
最新の空室状況について知りたい方は、お気軽にお問い合わせください。
「ウィーヴベース板橋本町」と同じ沿線、同じ種別の物件一覧
- ・都営三田線の賃貸物件一覧へ > 板橋本町駅の賃貸物件一覧へ
- ・大型犬可の賃貸物件一覧へ > 大型犬可の都営三田線の賃貸物件一覧へ > 大型犬可の板橋本町駅の賃貸物件一覧へ
- ・中型犬可の賃貸物件一覧へ > 中型犬可の都営三田線の賃貸物件一覧へ > 中型犬可の板橋本町駅の賃貸物件一覧へ
- ・小型犬可の賃貸物件一覧へ > 小型犬可の都営三田線の賃貸物件一覧へ > 小型犬可の板橋本町駅の賃貸物件一覧へ
- ・ネコ可の賃貸物件一覧へ > ネコ可の都営三田線の賃貸物件一覧へ > ネコ可の板橋本町駅の賃貸物件一覧へ
- ・多頭飼い可の賃貸物件一覧へ > 多頭飼い可の都営三田線の賃貸物件一覧へ > 多頭飼い可の板橋本町駅の賃貸物件一覧へ



















































都営三田線「板橋本町」駅より徒歩7分のペット可新築賃貸マンションです。落ち着いた住宅街の住環境良好なお部屋となります。
ただいまフリーレント2ヶ月キャンペーン中!
ペットは大型犬・中型犬・小型犬・猫の飼育相談が可能です。多頭飼育はお問い合わせください。
こちらのお部屋は仲介手数料無料にてご紹介中ですので、詳細についてはお気軽にお問い合わせください。