| 物件名 | Dear WAN Court 氷川台 (ディアワンコート氷川台 ) | ||
|---|---|---|---|
| 交通アクセス | 氷川台駅より徒歩5分 | ||
| 建物構造 | RC | ||
| 契約期間 | 2年 | ||
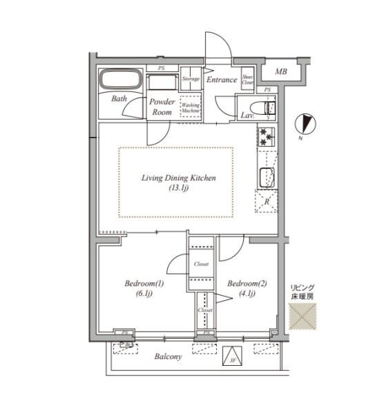
| 物件種別 | マンション | 築年月 | 2023年06月 |
| 現況 | 居住中 | 更新料 | 新賃料の1ヶ月分 |
| 引渡 | 3月上旬予定 | 主要採光面 | 北 |
| 駐輪場 | 空要確認 | バイク置場 | 空要確認 |
| 駐車場 | なし | ||
| 損害保険 | 950円~/月 | ||
| 保証会社利用 | 要加入 | 鍵交換費用 | 17,600円(税込)~ |
| 保証料 | 初回:総賃料の100% 年額:10,000円 | ||
| 設備・条件 | 2階以上の物件 , 角部屋 , ペット相談 , 2人入居可 , 保証人不要 , システムキッチン , ガスコンロ , コンロ二口以上 , バス・トイレ別 , 追い焚き , シャワートイレ , 浴室乾燥機 , エアコン , 床暖房 , CATV , CSアンテナ , BSアンテナ , 光ファイバー , オートロック , TVドアホン , 宅配ボックス , エレベーター , 室内洗濯機置場 , 駐輪場あり , バルコニー , 都市ガス , タイル貼り , ドッグラン | ||
| 備考 | ペット共生型マンション 屋上ドッグラン&ペット用足洗い場 1階店舗はペットホテル・トリミングサロン 滑りづらい床材 キズに強い壁クロス ナノイー発生器 玄関リードフック インターネット無料(シーファイブ) 全居室エアコン 床暖房(リビングルーム) パウダールーム 独立洗面化粧台 24時間換気システム クローゼット 収納スペース シューズボックス ランドリハンガー 玄関人感センサーライト ディンプルキー ダブルロックドア 防犯カメラ 敷地内ごみ置場(冷凍クリーンボックスあり) 24時間サポート要加入:880円(税込) 退去時ルームクリーニング費用負担あり ペット飼育時:敷金1ヶ月追加/償却 | ||
| お問い合わせ番号 | 04313 | ||
- ※写真や間取り図面が現況と相違する場合は現況を優先させていただきます。
- ※掲載している物件が万が一ご成約の場合はご了承願います。
- ※駐車場、バイク置場、駐輪場の正確な空き状況についてはお問い合わせ頂けますでしょうか。
- ※共同住宅の場合はこちらのお部屋以外にも空室がある場合がございます。
弊社専門スタッフが迅速にご対応致しますので、お電話かメールにてお気軽にお問い合わせください。 - ※仲介手数料の割引率が変更になっている場合もございますので、お問い合わせの際にご確認いただけますよう
お願い申し上げます。 - ※法人契約にて社宅代行業者を利用する場合には、仲介手数料の割引が適用されない場合がございます。
ディアワンコート氷川台の空室一覧
「ディアワンコート氷川台」と同じ沿線、同じ種別の物件一覧
- ・東京メトロ有楽町線の賃貸物件一覧へ > 氷川台駅の賃貸物件一覧へ
- ・大型犬可の賃貸物件一覧へ > 大型犬可の東京メトロ有楽町線の賃貸物件一覧へ > 大型犬可の氷川台駅の賃貸物件一覧へ
- ・中型犬可の賃貸物件一覧へ > 中型犬可の東京メトロ有楽町線の賃貸物件一覧へ > 中型犬可の氷川台駅の賃貸物件一覧へ
- ・小型犬可の賃貸物件一覧へ > 小型犬可の東京メトロ有楽町線の賃貸物件一覧へ > 小型犬可の氷川台駅の賃貸物件一覧へ
- ・ネコ可の賃貸物件一覧へ > ネコ可の東京メトロ有楽町線の賃貸物件一覧へ > ネコ可の氷川台駅の賃貸物件一覧へ
- ・多頭飼い可の賃貸物件一覧へ > 多頭飼い可の東京メトロ有楽町線の賃貸物件一覧へ > 多頭飼い可の氷川台駅の賃貸物件一覧へ























































東京メトロ有楽町線「氷川台」駅より徒歩5分のペット共生型マンションです。
1階店舗はペットホテル・トリミングサロンのお部屋となります。
ペットは大型犬・中型犬・小型犬・猫の多頭飼育が可能です。頭数はお問い合わせください。