| 物件名 | GENOVIA 北池袋 (ジェノヴィア北池袋 ) | ||
|---|---|---|---|
| 交通アクセス | 板橋駅より徒歩5分 | ||
| 建物構造 | RC | ||
| 契約期間 | 2年 | ||
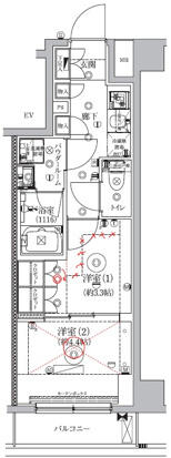
| 物件種別 | マンション | 築年月 | 2025年10月 |
| 現況 | 空室 | 更新料 | 新賃料の1ヶ月分 |
| 引渡 | 即入居可 | 主要採光面 | 北西 |
| 駐輪場 | 有 | バイク置場 | - |
| 駐車場 | 空なし | ||
| 損害保険 | 要加入 | ||
| 保証会社利用 | 要加入 | 鍵交換費用 | - |
| 保証料 | 詳細はお問い合わせください。 | ||
| 設備・条件 | 2階以上の物件 , ペット相談 , 2人入居可 , 即入居可 , 保証人不要 , システムキッチン , ガスコンロ , コンロ二口以上 , バス・トイレ別 , 追い焚き , シャワートイレ , 浴室乾燥機 , エアコン , CSアンテナ , BSアンテナ , 光ファイバー , オートロック , TVドアホン , 宅配ボックス , エレベーター , 室内洗濯機置場 , フローリング , 駐輪場あり , バルコニー , 都市ガス , タイル貼り | ||
| 備考 | インターネット無料(wi-Fi) オールフローリング パウダールーム 独立洗面化粧台 24時間換気システム クローゼット 収納スペース シューズボックス 人感センサー照明 マルチメディアコンセント ディンプルキー ダブルロックドア 防犯カメラ 24時間緊急通報システム 敷地内ごみ置場 RBI安心サポート(月額保証委託料+家財保険+家賃引落手数料+mamorocca):2,700円/月(税込) 事務手数料:11,000円 消臭抗菌サービス:11,000円 退去時ルームクリーニング費用負担あり ペット飼育時:敷金積増なし(多頭飼い・大型犬の場合、基本敷金1ヶ月※頭数により変動あり) ※短期解約違約金:1年未満の解約で総賃料1ヶ月分 | ||
| お問い合わせ番号 | 04272 | ||
- ※写真や間取り図面が現況と相違する場合は現況を優先させていただきます。
- ※掲載している物件が万が一ご成約の場合はご了承願います。
- ※駐車場、バイク置場、駐輪場の正確な空き状況についてはお問い合わせ頂けますでしょうか。
- ※共同住宅の場合はこちらのお部屋以外にも空室がある場合がございます。
弊社専門スタッフが迅速にご対応致しますので、お電話かメールにてお気軽にお問い合わせください。 - ※仲介手数料の割引率が変更になっている場合もございますので、お問い合わせの際にご確認いただけますよう
お願い申し上げます。 - ※法人契約にて社宅代行業者を利用する場合には、仲介手数料の割引が適用されない場合がございます。










































JR埼京線「板橋」駅より徒歩5分のペット可新築賃貸マンションです。インターネット無料!分譲仕様の室内設備が充実したお部屋になります。
ペットは大型犬・中型犬・小型犬・猫の多頭飼育が可能です。3匹以上もご相談ください。
こちらのお部屋は仲介手数料無料にてご紹介中ですので、詳細についてはお気軽にお問い合わせください。