| 物件名 | パークレジデンス市川 | ||
|---|---|---|---|
| 交通アクセス | 市川駅より徒歩13分 | ||
| 建物構造 | RC | ||
| 契約期間 | 2年 | ||
| 物件種別 | マンション | 築年月 | 2002年04月 |
| 現況 | 空室 | 更新料 | 新賃料の1ヶ月分 |
| 引渡 | 5月下旬予定 | 主要採光面 | 南西 |
| 駐輪場 | 有 | バイク置場 | - |
| 駐車場 | 空要確認 | ||
| 損害保険 | 16,550円/2年 | ||
| 保証会社利用 | 要加入 | 鍵交換費用 | 38,500円(税込) |
| 保証料 | 初回:総賃料の50% 月額:総賃料の1% | ||
| 設備・条件 | 最上階の物件 , ペット相談 , 楽器相談 , 2人入居可 , 保証人不要 , システムキッチン , ガスコンロ , コンロ二口以上 , バス・トイレ別 , 追い焚き , シャワートイレ , 浴室乾燥機 , エアコン , CATV , BSアンテナ , 光ファイバー , TVドアホン , エレベーター , 室内洗濯機置場 , フローリング , 駐輪場あり , バルコニー , 都市ガス , タイル貼り , ドッグラン | ||
| 備考 | ペット共生型マンション グルーミングルーム・ペットプレイロット(共用部) ペット用足洗い場 オールフローリング 全居室エアコン設置 パウダールーム 独立洗面化粧台 24時間換気システム クローゼット 収納スペース シューズボックス ディンプルキー 防犯カメラ 敷地内ごみ置場 退去時ルームクリーニング費用負担あり ペット飼育時:敷金1ヶ月追加 | ||
| お問い合わせ番号 | 04090 | ||
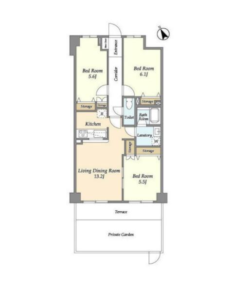
- ※写真や間取り図面が現況と相違する場合は現況を優先させていただきます。
- ※掲載している物件が万が一ご成約の場合はご了承願います。
- ※駐車場、バイク置場、駐輪場の正確な空き状況についてはお問い合わせ頂けますでしょうか。
- ※共同住宅の場合はこちらのお部屋以外にも空室がある場合がございます。
弊社専門スタッフが迅速にご対応致しますので、お電話かメールにてお気軽にお問い合わせください。 - ※仲介手数料の割引率が変更になっている場合もございますので、お問い合わせの際にご確認いただけますよう
お願い申し上げます。 - ※法人契約にて社宅代行業者を利用する場合には、仲介手数料の割引が適用されない場合がございます。




























































グルーミングルームなどペット用設備が充実した共生型賃貸マンションです。江戸川河川敷緑地にほど近くお散歩にも便利なお部屋になります。
ペットは小型犬・猫あわせて2匹まで飼育のご相談いただけます。
充実のペット用設備「グルーミングルーム・ペットプレイロット・ペットトイレ・ペットスペース・ペット用出入口」
こちらのお部屋は仲介手数料無料にてご紹介中ですので、詳細についてはお気軽にお問い合わせください。