| 物件名 | GENOVIA 西横浜 (ジェノヴィア西横浜 ) | ||
|---|---|---|---|
| 交通アクセス | 西横浜駅より徒歩5分 | ||
| 建物構造 | RC | ||
| 契約期間 | 2年 | ||
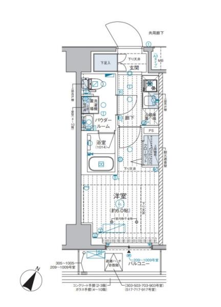
| 物件種別 | マンション | 築年月 | 2024年05月 |
| 現況 | 居住中 | 更新料 | 新賃料の1ヶ月分 |
| 引渡 | 5月中旬予定 | 主要採光面 | 南東 |
| 駐輪場 | 有 無料 | バイク置場 | 空要確認 |
| 駐車場 | 空要確認 | ||
| 損害保険 | 要加入 | ||
| 保証会社利用 | 要加入 | 鍵交換費用 | 27,500円(税込)/任意 |
| 保証料 | 詳細はお問い合わせください。 | ||
| 設備・条件 | 2階以上の物件 , ペット相談 , 2人入居可 , 保証人不要 , システムキッチン , ガスコンロ , コンロ二口以上 , バス・トイレ別 , シャワートイレ , 浴室乾燥機 , エアコン , CSアンテナ , BSアンテナ , 光ファイバー , オートロック , TVドアホン , 宅配ボックス , エレベーター , 室内洗濯機置場 , フローリング , バイク置き場あり , 駐輪場あり , バルコニー , 都市ガス , タイル貼り | ||
| 備考 | インターネット無料(wi-Fi) パウダールーム 独立洗面化粧台 24時間換気システム クローゼット 収納スペース シューズボックス マルチメディアコンセント ディンプルキー ダブルロックドア 防犯カメラ 敷地内ごみ置場 RBI安心サポート(月額保証委託料+家財保険+家賃引落手数料+mamorocca):2,700円/月(税込) 事務手数料:11,000円 消臭抗菌サービス:11,000円 退去時ルームクリーニング費用負担あり ペット飼育時:基本的に敷金積み増しなし/多頭飼育や大型犬の場合には敷金(基本1ヶ月/解約時償却)の積み増しの場合あり。 | ||
| お問い合わせ番号 | 03639 | ||
- ※写真や間取り図面が現況と相違する場合は現況を優先させていただきます。
- ※掲載している物件が万が一ご成約の場合はご了承願います。
- ※駐車場、バイク置場、駐輪場の正確な空き状況についてはお問い合わせ頂けますでしょうか。
- ※共同住宅の場合はこちらのお部屋以外にも空室がある場合がございます。
弊社専門スタッフが迅速にご対応致しますので、お電話かメールにてお気軽にお問い合わせください。 - ※仲介手数料の割引率が変更になっている場合もございますので、お問い合わせの際にご確認いただけますよう
お願い申し上げます。 - ※法人契約にて社宅代行業者を利用する場合には、仲介手数料の割引が適用されない場合がございます。
ジェノヴィア西横浜の空室一覧
最新の空室状況について知りたい方は、お気軽にお問い合わせください。















































相鉄線「西横浜」駅より徒歩5分のペット可賃貸マンションです。インターネット無料!分譲仕様の室内設備が充実したお部屋になります。
ペットは大型犬・中型犬・小型犬・猫の多頭飼育が可能です。3匹以上もご相談ください。
こちらのお部屋は仲介手数料無料にてご紹介中ですので、詳細についてはお気軽にお問い合わせください。