| 物件名 | B CITY ART RESIDENCE CENTRAL PARK | ||
|---|---|---|---|
| 交通アクセス | 流山セントラルパーク駅より徒歩1分 | ||
| 建物構造 | RC | ||
| 契約期間 | 2年 | ||
| 物件種別 | マンション | 築年月 | 2018年11月 |
| 現況 | 空室 | 更新料 | 新賃料の1.5ヶ月分 |
| 引渡 | 4月中旬予定 | 主要採光面 | 北 |
| 駐輪場 | 空要確認 | バイク置場 | 空要確認 |
| 駐車場 | なし | ||
| 損害保険 | 23,000円~/2年 | ||
| 保証会社利用 | 要加入 | 鍵交換費用 | 38,500円(税込) |
| 保証料 | 初回:総賃料の50% 年額:10,000円 | ||
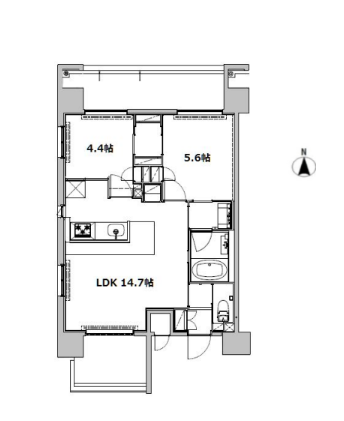
| 設備・条件 | 2階以上の物件 , 角部屋 , ペット相談 , 2人入居可 , 保証人不要 , システムキッチン , ガスコンロ , コンロ二口以上 , カウンターキッチン , バス・トイレ別 , 追い焚き , シャワートイレ , 浴室乾燥機 , エアコン , CSアンテナ , BSアンテナ , 光ファイバー , オートロック , TVドアホン , 宅配ボックス , エレベーター , 室内洗濯機置場 , フローリング , 駐輪場あり , バルコニー , 都市ガス , タイル貼り | ||
| 備考 | フリーレント1ヶ月 インターネット無料(Wi-Fi) 2面バルコニー 2面採光 オールフローリング パウダールーム 独立洗面化粧台 24時間換気システム クローゼット 収納スペース シューズボックス 人感センサー付き照明 ディンプルキー ダブルロックドア 防犯カメラ 敷地内ゴミ置場 ルームシェア応相談 24時間安心サポート:22,000円/2年 保証金:132,500円(クリーニング含む) ペット飼育時:1匹は犬(敷金1ヶ月)、猫(1.5ヶ月) ・2匹は犬(敷金2ヶ月)、猫(2.5ヶ月)・3匹は犬(敷金2.5ヶ月)、猫(2.5ヶ月) ※犬と猫両方飼育される場合は猫の敷金ルールが適用されます。 | ||
| お問い合わせ番号 | 02673 | ||
- ※写真や間取り図面が現況と相違する場合は現況を優先させていただきます。
- ※掲載している物件が万が一ご成約の場合はご了承願います。
- ※駐車場、バイク置場、駐輪場の正確な空き状況についてはお問い合わせ頂けますでしょうか。
- ※共同住宅の場合はこちらのお部屋以外にも空室がある場合がございます。
弊社専門スタッフが迅速にご対応致しますので、お電話かメールにてお気軽にお問い合わせください。 - ※仲介手数料の割引率が変更になっている場合もございますので、お問い合わせの際にご確認いただけますよう
お願い申し上げます。 - ※法人契約にて社宅代行業者を利用する場合には、仲介手数料の割引が適用されない場合がございます。
B CITY ART RESIDENCE CENTRAL PARKの空室一覧
最新の空室状況について知りたい方は、お気軽にお問い合わせください。
「B CITY ART RESIDENCE CENTRAL PARK」と同じ沿線、同じ種別の物件一覧
- ・つくばエクスプレスの賃貸物件一覧へ > 流山セントラルパーク駅の賃貸物件一覧へ
- ・大型犬可の賃貸物件一覧へ > 大型犬可のつくばエクスプレスの賃貸物件一覧へ > 大型犬可の流山セントラルパーク駅の賃貸物件一覧へ
- ・中型犬可の賃貸物件一覧へ > 中型犬可のつくばエクスプレスの賃貸物件一覧へ > 中型犬可の流山セントラルパーク駅の賃貸物件一覧へ
- ・小型犬可の賃貸物件一覧へ > 小型犬可のつくばエクスプレスの賃貸物件一覧へ > 小型犬可の流山セントラルパーク駅の賃貸物件一覧へ
- ・ネコ可の賃貸物件一覧へ > ネコ可のつくばエクスプレスの賃貸物件一覧へ > ネコ可の流山セントラルパーク駅の賃貸物件一覧へ
- ・多頭飼い可の賃貸物件一覧へ > 多頭飼い可のつくばエクスプレスの賃貸物件一覧へ > 多頭飼い可の流山セントラルパーク駅の賃貸物件一覧へ


















































つくばエクスプレス「流山セントラルパーク」駅より徒歩1分のペット可賃貸マンションです。
インターネット無料!分譲仕様の設備が充実したお部屋になります。
ペットは大型犬・中型犬・小型犬・猫あわせて3匹まで飼育のご相談いただけます。
こちらのお部屋は仲介手数料50%割引にてご紹介中ですので、詳細についてはお気軽にお問い合わせください。