| 物件名 | EDIT ebisu (エディット恵比寿 ) | ||
|---|---|---|---|
| 交通アクセス | 恵比寿駅より徒歩10分 | ||
| 建物構造 | RC | ||
| 契約期間 | 2年 | ||
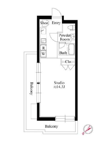
| 物件種別 | マンション | 築年月 | 2020年08月 |
| 現況 | 居住中 | 更新料 | 新賃料の1.5ヶ月分 |
| 引渡 | 5月上旬予定 | 主要採光面 | 北東 |
| 駐輪場 | - | バイク置場 | - |
| 駐車場 | なし | ||
| 損害保険 | 要加入 | ||
| 保証会社利用 | 要加入 | 鍵交換費用 | 22,000円(税込) |
| 保証料 | 初回:総賃料の55% | ||
| 設備・条件 | 最上階の物件 , 角部屋 , ペット相談 , 2人入居可 , デザイナーズ , 事務所可 , 保証人不要 , システムキッチン , IHコンロ , コンロ二口以上 , バス・トイレ別 , 追い焚き , シャワートイレ , 浴室乾燥機 , エアコン , ウォークインクローゼット , CATV , CSアンテナ , BSアンテナ , 光ファイバー , オートロック , TVドアホン , 宅配ボックス , エレベーター , 室内洗濯機置場 , フローリング , バルコニー , 都市ガス | ||
| 備考 | インターネット無料(Wi-Fi) 2面採光 2面バルコニー パウダールーム 独立洗面化粧台 24時間換気システム クローゼット 収納スペース シューズボックス マルチメディアコンセント ダブルロック&ディンプルキー 防犯カメラ 敷地内ゴミ置場 24時間安心サポート料:22,000円 室内抗菌処理代:17,600円 契約事務手数料:11,000円 賃料口座振替手数料:550円/月 退去時ルームクリーニング費用負担あり ペット飼育時:敷金1ヶ月追加 | ||
| お問い合わせ番号 | 02392 | ||
- ※写真や間取り図面が現況と相違する場合は現況を優先させていただきます。
- ※掲載している物件が万が一ご成約の場合はご了承願います。
- ※駐車場、バイク置場、駐輪場の正確な空き状況についてはお問い合わせ頂けますでしょうか。
- ※共同住宅の場合はこちらのお部屋以外にも空室がある場合がございます。
弊社専門スタッフが迅速にご対応致しますので、お電話かメールにてお気軽にお問い合わせください。 - ※仲介手数料の割引率が変更になっている場合もございますので、お問い合わせの際にご確認いただけますよう
お願い申し上げます。 - ※法人契約にて社宅代行業者を利用する場合には、仲介手数料の割引が適用されない場合がございます。
エディット恵比寿の空室一覧
| 号室 | 賃料 | 管理費 / 共益費 | 間取り | 面積 | 個別情報 |
|---|---|---|---|---|---|
| 104号室募集中 | 21.3万円 | 12,000円 | 1LDK | 34.16m² | 詳細 |
最新の空室状況について知りたい方は、お気軽にお問い合わせください。



























































JR山手線「恵比寿」駅より徒歩10分のペット可賃貸マンションです。広尾商店街に近い生活環境良好なお部屋になります。
ペットは中型犬・小型犬は1匹まで。猫は2匹まで飼育のご相談いただけます。
こちらのお部屋は仲介手数料無料にてご紹介中ですので、詳細についてはお気軽にお問い合わせください。