| 物件名 | Park Axis 豊洲 (パークアクシス豊洲 ) | ||
|---|---|---|---|
| 交通アクセス | 豊洲駅より徒歩8分 | ||
| 建物構造 | RC | ||
| 契約期間 | 2年 | ||
| 物件種別 | マンション | 築年月 | 2008年03月 |
| 現況 | 空室 | 更新料 | 新賃料の1ヶ月分 |
| 引渡 | 5月下旬予定 | 主要採光面 | 北東 |
| 駐輪場 | 有 220円~/月 | バイク置場 | 空要確認 |
| 駐車場 | 有 27,500円/月 | ||
| 損害保険 | 要加入 | ||
| 保証会社利用 | 要加入 | 鍵交換費用 | 16,500円(税込) |
| 保証料 | 初回:家賃総額の50% 更新料9,600円/年 | ||
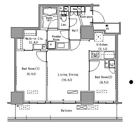
| 設備・条件 | 2階以上の物件 , ペット相談 , 楽器相談 , 2人入居可 , 保証人不要 , システムキッチン , IHコンロ , コンロ二口以上 , カウンターキッチン , バス・トイレ別 , シャワートイレ , 浴室乾燥機 , エアコン , ウォークインクローゼット , CATV , CSアンテナ , BSアンテナ , 光ファイバー , オートロック , TVドアホン , 宅配ボックス , エレベーター , 室内洗濯機置場 , フローリング , 駐車場あり , 駐輪場あり , バルコニー , 都市ガス , タイル貼り | ||
| 備考 | 共用部分(フロントサービス・ガーデンスパ・フィットネスルーム) 管理人常駐 オールフローリング パウダールーム 独立洗面化粧台 24時間換気システム クローゼット 収納スペース シューズインクローゼット ディンプルキー 防犯カメラ 敷地内ごみ置場 アップライトピアノ相談 駐輪場:上段220円/下段330円/月 口座振替手数料220円/月 退去時クリーニング費用負担あり ペット飼育時:敷金1ヶ月追加/別途管理費1,000円増 | ||
| お問い合わせ番号 | 02341 | ||
- ※写真や間取り図面が現況と相違する場合は現況を優先させていただきます。
- ※掲載している物件が万が一ご成約の場合はご了承願います。
- ※駐車場、バイク置場、駐輪場の正確な空き状況についてはお問い合わせ頂けますでしょうか。
- ※共同住宅の場合はこちらのお部屋以外にも空室がある場合がございます。
弊社専門スタッフが迅速にご対応致しますので、お電話かメールにてお気軽にお問い合わせください。 - ※仲介手数料の割引率が変更になっている場合もございますので、お問い合わせの際にご確認いただけますよう
お願い申し上げます。 - ※法人契約にて社宅代行業者を利用する場合には、仲介手数料の割引が適用されない場合がございます。






















































フィットネスルームやガーデンスパなどの共用設備があるペット可賃貸マンションです。フロントサービス・管理人常駐のセキュリティにも優れたお部屋になります。
ペットは小型犬・猫あわせて2匹まで飼育のご相談いただけます。
こちらのお部屋は仲介手数料無料にてご紹介できますので、詳細についてはお気軽にお問合せください。