| 物件名 | ARKMARK 池袋本町 (アークマーク池袋本町 ) | ||
|---|---|---|---|
| 交通アクセス | 北池袋駅より徒歩7分 | ||
| 建物構造 | RC | ||
| 契約期間 | 2年 | ||
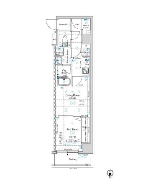
| 物件種別 | マンション | 築年月 | 2026年10月 |
| 現況 | 空室 | 更新料 | 新賃料の1ヶ月分 |
| 引渡 | 即入居可 | 主要採光面 | 北 |
| 駐輪場 | 空要確認 | バイク置場 | - |
| 駐車場 | 空要確認 | ||
| 損害保険 | 23,000円/2年 | ||
| 保証会社利用 | 要加入 | 鍵交換費用 | - |
| 保証料 | 初回:総賃料の50% 年額:10,000円 | ||
| 設備・条件 | 2階以上の物件 , ペット相談 , 即入居可 , 保証人不要 , システムキッチン , ガスコンロ , コンロ二口以上 , バス・トイレ別 , 追い焚き , シャワートイレ , 浴室乾燥機 , エアコン , CSアンテナ , BSアンテナ , 光ファイバー , オートロック , TVドアホン , 宅配ボックス , エレベーター , 室内洗濯機置場 , フローリング , バルコニー , 都市ガス , タイル貼り | ||
| 備考 | インターネット無料 オールフローリング パウダールーム 独立洗面化粧台 24時間換気システム クローゼット 収納スペース シューズボックス ディンプルキー ダブルロックドア 防犯カメラ 敷地内ごみ置場 書類作成費:22,000円(税込) 達磨サポート要加入:2,000円/月 更新事務手数料:新賃料の0.5ヶ月分 退去時ルームクリーニング費用:77,000円(税込) ペット飼育時:敷金追加あり/償却 ※禁煙者限定 | ||
| お問い合わせ番号 | 03988 | ||
- ※写真や間取り図面が現況と相違する場合は現況を優先させていただきます。
- ※掲載している物件が万が一ご成約の場合はご了承願います。
- ※駐車場、バイク置場、駐輪場の正確な空き状況についてはお問い合わせ頂けますでしょうか。
- ※共同住宅の場合はこちらのお部屋以外にも空室がある場合がございます。
弊社専門スタッフが迅速にご対応致しますので、お電話かメールにてお気軽にお問い合わせください。 - ※仲介手数料の割引率が変更になっている場合もございますので、お問い合わせの際にご確認いただけますよう
お願い申し上げます。 - ※法人契約にて社宅代行業者を利用する場合には、仲介手数料の割引が適用されない場合がございます。












































東武東上線「北池袋」駅より徒歩7分のペット可新築賃貸マンションです。
分譲仕様の室内設備が充実したお部屋になります。
ペットは中型犬は1匹まで。小型犬・猫は2匹まで飼育のご相談いただけます。